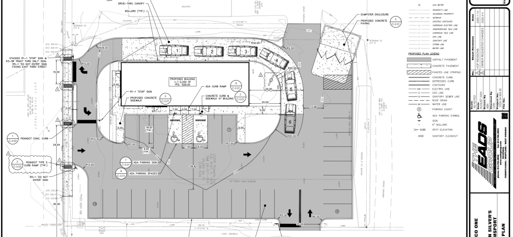
Williamsport, Pennsylvania — The Long John Silvers on E. Third Street, also known as the Williamsport Golden Strip in Lycoming County, will be rebuilt this spring after an electrical fire damaged the restaurant in February. Pre-construction is currently underway. Demolition of the old building is scheduled to begin in April, and a total reconstruction will begin in May.
Plans call for the exterior of the building to be finished using the iconic Sherwin Williams “LONG JOHN BLUE” custom paint. Contract documents indicate liquidated damages of $1,500 per day will be paid to the owner, with a 10-day grace period, in the event that construction is delayed beyond the completion date which is preliminarily estimated at 18-20 weeks.

According to initial reports from the scene of the fire printed in the Williamsport Sun-Gazette, Pennsylvania State Trooper Stephen Schramm, a state police fire marshal, ruled the cause of the fire as accidental.
He said the fire broke out in an area between the roof and a drop ceiling. Damage was initially estimated at $50,000. However, Schramm said he was told that before the fire occurred, Long John Silver’s had already planned to demolish the structure and build a new restaurant.
15 employees who worked at the restaurant were sent to other local Long John Silver’s locations according to a regional manager who was interviewed by WNEP 16 of Scranton.
