Hummelstown, Pennsylvania — Plans for a large mosque in Derry Township will be previewed by the Board of Supervisors in March before heading back to the planning commission to be considered for approval in May. The site is located directly behind Sheetz on Middletown Road.
Rather than to outright reject the plan for Hershey Islamic Center, the Derry Township Planning Commission once again tabled plans for the center due to outstanding issues during their Tuesday night meeting. At that time an arrangement was made to add this plan to the township meeting agenda to be previewed by the Board of Supervisors.

“I don’t like the idea of rejecting the plan and sending it up to the Board of Supervisors and say you deal with it,” planning commission member Thomas Wilson said. “It’s not a plan ready to be approved.” – The Sun
Representatives of the project will present their plan to the board, giving them an opportunity to describe the hardship conditions related to their inability to provide an emergency or secondary entrance, and other outstanding issues. Although not required by the township ordinance, Community Planning Director Chuck Emerick said the second entrance is good practice, and was also required by supervisors during the planning of SwimHershey in Derry Township.
The plan for public water service to the mosque remains outstanding, although it is expected to be resolved prior to seeking approval from the commission.
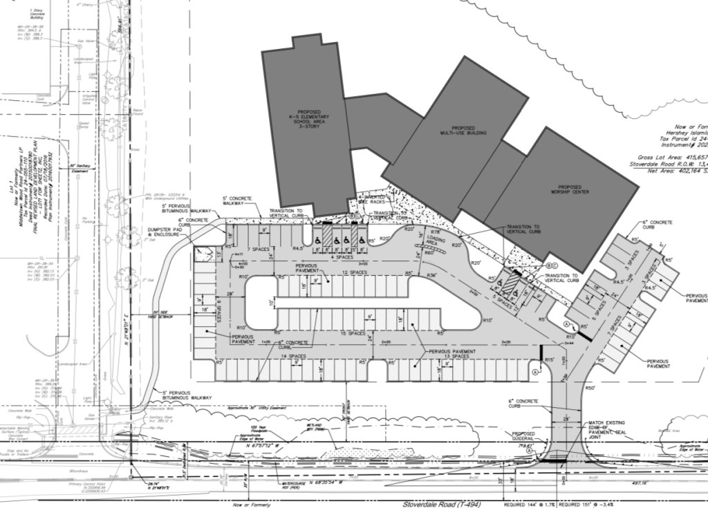
Members of the public will again have the opportunity to speak about this project and its impact on the community at the March 25 township meeting. The Hershey Islamic Center plan calls for the phased construction of three connected buildings, to be used for religious worship, elementary education, and a community center facing Stoverdale Road. When completed, the mosque will consist of a three story school building for 210 students in grades K-5, a multipurpose building, and a center for 300 worshippers.

Members of the public spoke at this week’s Derry Township Planning Commission meeting with concerns about the single parking lot entrance, and nearby traffic on Middletown Road. The greatest influx of traffic will occur during Friday afternoon prayer service when school is also in session. Parking lot capacity at this peak time could be significantly strained. The developers believe their project plans currently fulfill the township ordinance for number of parking spaces required at this type of facility.
PennDOT is currently developing a long term plan to widen Middletown Road in the area.
During discussion by the planning commission at their meeting in August, it was also mentioned that the center should be prepared for noise associated with the neighboring outdoor shooting range that operates year round.
UPDATE 3/26/2025: Islamic Center “green entrance” surprise
The Derry Township Board of Supervisors were surprised by a last minute update to the plan for a private school and church facility being proposed on Stoverdale Road. Representatives for the Hershey Islamic Center unveiled an alternative to their original design that now includes an unpaved “green entrance” for emergency access. Although the board was not prepared to remark on the new proposal, they were in consensus that the plan for this facility will be required to have two separate means of ingress and egress in the event of an emergency. Madam Chairwoman Natalie Nutt firmly asserted several times that a building project of this size facilitating school children in Derry Township will absolutely require a second entrance.
Members of the Islamic community are eager to get the project off of the ground, although the challenges of engineering a suitable parking lot entrance have complicated the planning process, and increased the projected cost of construction. Because conditions at the site allow for access only from Stoverdale Road along a creek bed, DEP will now have to consider environmental impacts of the proposed green entrance. The owner of the adjacent parcel at the neighboring Sheetz plaza won’t allow for emergency access onto their property.
Designing a suitable parking lot for the proposed facility at this location is also a challenge because the site is zoned in the conservation zoning district. The requirement for impervious paved area of the proposed project would require additional action from the zoning hearing board to alter their current proposal if the parking lot would need to include more paved area.
One township resident who spoke with Harrisburg100 after the meeting said it is disheartening to see every inch of farmland, open fields, and woods in Derry Township being developed. She also recalls the severe flooding during storms in 2011 and considered the potential impact on the parking lot entrance of the Islamic center in the event of another storm.
Township resident Bobby Jeffries also spoke to Harrisburg100 about traffic in the area of the proposed plan. He described the parking lot entrances and access road behind the plaza with Sheetz, saying, “Traffic can be a mess with everyone having to drive off of Wood Road to access the parking lots. That is a crowded space for sure with the Stoverdale Church and old cemetery on the other side.”
Early in the planning process it was considered that an entrance could be added to the privately owned access road behind Sheetz, however that proposal was not accepted by the property owner of the plaza. Engineers seek to design a sufficient parking lot including two entrances within the framework of the township ordinances while staying within the project budget.

NO
LikeLike
cowardly reply from an anonymous user. What else is new
LikeLike
look what’s happening in London right now.
LikeLike
Been to the Middle East several times, there are no moderate Muslims. Rethink what you are doing to Christians who live in Derry Township and surrounding counties.
LikeLike
What’s next sharia law !! Run women run. Fact not fiction !!
LikeLike
This is unbelievable! These people are taught to hate us and they will fight to push Sharia law. As a Christian I do not want to see this happening in our state. Wake the hell up Hershey, what is wrong with you fools!!!!
LikeLike
I sincerely hope not. No more mosques!! We aren’t the UK
LikeLike
No!!! We aren’t Europe look at the UK. Please don’t ruin Hershey
LikeLike
9/11-10/7NeverForget
LikeLike
Any updates on this?
LikeLike
Horrible news! Read the European News! Not in the USA please!
LikeLike